The corner 水道橋のテナント募集中区画
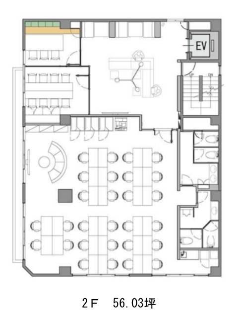
| 階数 | 面積 | 賃料(共益費含む) | 保証金 | 入居可能日 | 検討リスト | 詳細 |
|---|---|---|---|---|---|---|
| 2 | 56.03坪 | 1,479,192円/月(26,400円/坪) | 806万円 | 即 |
…新着物件
アクセス
The corner 水道橋の物件情報
The corner 水道橋(千代田区神田三崎町)は水道橋駅(東口)から徒歩5分の賃貸オフィスです。1983年竣工、地上5階建て。白山通りから路地を入った角地にあります。2022年の大規模リニューアルでセットアップオフィスとして生まれ変わりました。ビル内には執務スペースの他に受付、会議室、テレカンブース、ラウンジ等、機能的な設備が整っています。その他の設備として個別空調とOAフロアを備え、男女別トイレは専有部にございます。また、低層ながらエレベーターを設置しているため、フロア昇降のストレスもありません。周辺には教育機関が多く、安くて美味しい飲食点が豊富ですのでランチタイムも快適です。The corner 水道橋は水道橋駅(東口)の他に神保町駅(A2番出口)徒歩8分、九段下駅(7番出口)徒歩10分で利用も可能です。

