1階 1西は現在募集がありません
1フロア募集区画あり

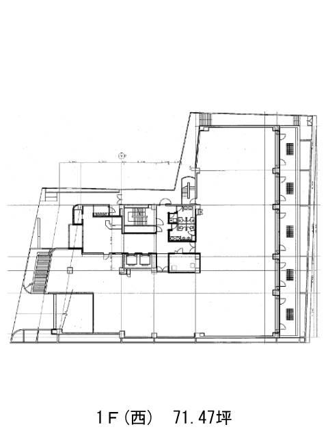
泉館三番町 1階 1西

前の写真 次の写真

物件概要

物件番号

390-00021-103

物件名

泉館三番町

所在地

面積

71.47坪

賃料(共益費含)


入居日

募集終了

保証金

礼金

更新料

償却費

竣工

1987年5月

構造

RC

規模

地上6階/地下1階

トイレ

男女別

空調

個別空調

エレベーター

セキュリティ

駐車場

耐震

新耐震基準

基準階天井高

空室延床面積

205.32坪

最寄駅

情報更新日

2026/04/20

泉館三番町のテナント募集中区画

階数 面積 賃料(共益費含む) 保証金 入居可能日 検討リスト 詳細
5 205.32坪 応相談(応相談) 応相談
…新着物件

泉館三番町のアクセス

泉館三番町の物件情報

泉館三番町(千代田区三番町)は半蔵門駅(5番出口)から徒歩6分の賃貸オフィスです。
1987年施工で地上6階建てのオフィスビルです。新耐震基準に適合していますので、安心してご入居いただけます。貸室内はフリーアクセス床となっているので、配線しやすいフロアです。設備面は、男女別トイレ、個別空調、機械警備導入、24時間使用可能、エレベーターは2基設置されています。大通りから少し入ったところにあるため、静かな環境です。徒歩圏内にはコンビニエンスストアが点在しております。
泉館三番町は半蔵門駅(5番出口)の他に市ヶ谷駅(A3番出口)徒歩11分、麹町駅(6番出口)徒歩11分で利用も可能です。

近隣のエリア・駅から探す