3階は現在募集がありません
2フロア募集区画あり

メットライフ三番町ビル 3階

前の写真 次の写真

物件概要

物件番号

390-00058-30

物件名

メットライフ三番町ビル

所在地

面積

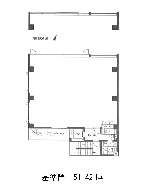
51.42坪

賃料(共益費含)


入居日

募集終了

保証金

礼金

更新料

償却費

竣工

2007年3月

構造

S造

規模

地上6階

トイレ

男女別

空調

個別空調

エレベーター

セキュリティ

駐車場

耐震

新耐震基準

基準階天井高

3000mm

空室延床面積

73.91坪

最寄駅

情報更新日

2026/03/11

メットライフ三番町ビルのテナント募集中区画

階数 面積 賃料(共益費含む) 保証金 入居可能日 検討リスト 詳細
1 22.49坪 応相談(応相談) 応相談 2026年4月中旬
4 51.42坪 応相談(応相談) 応相談 2026年4月中旬
…新着物件

メットライフ三番町ビルのアクセス

メットライフ三番町ビルの物件情報

メットライフ三番町ビル(千代田区三番町)は市ヶ谷駅(A3番出口)から徒歩5分の賃貸オフィスです。
飯田橋駅から徒歩圏内という利便性の高い立地ながら、通りから一歩入った落ち着きある環境に佇むオフィスビルです。1フロア約51坪の整形な無柱空間は、柱による視線や導線の妨げがなく、オフィスレイアウトの自由度が高い点が魅力。フリーアドレス制や複数部署の分割配置など、多様な働き方にも柔軟に対応可能です。
天井高はゆとりある3,000mmを確保しており、開放的で快適な執務空間を実現。照明や空調の設計の幅も広がります。OAフロアを採用しているため、煩雑になりがちな配線類もすっきり整理でき、ICT環境の整備にも適しています。

水回り(トイレ・給湯スペース)は室外に配置されており、執務スペースのレイアウト効率が向上。機械警備システムによるセキュリティ体制も整っており、安心して業務に集中できる環境が整っています。敷地内には駐車場も完備されており、車利用の多い企業様にもおすすめです。
メットライフ三番町ビルは市ヶ谷駅(A3番出口)の他に半蔵門駅(5番出口)徒歩7分、麹町駅(6番出口)徒歩9分で利用も可能です。

近隣のエリア・駅から探す