メットライフ三番町ビルのテナント募集中区画
| 階数 | 面積 | 賃料(共益費含む) | 保証金 | 入居可能日 | 検討リスト | 詳細 |
|---|---|---|---|---|---|---|
| 1 | 22.49坪 | 応相談(応相談) | 応相談 | 2026年4月中旬 | ||
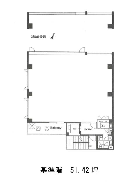
| 4 | 51.42坪 | 応相談(応相談) | 応相談 | 2026年4月中旬 |
…新着物件
メットライフ三番町ビルのアクセス
メットライフ三番町ビルの物件情報
メットライフ三番町ビル(千代田区三番町)は市ヶ谷駅(A3番出口)から徒歩5分の賃貸オフィスです。飯田橋駅から徒歩圏内という利便性の高い立地ながら、通りから一歩入った落ち着きある環境に佇むオフィスビルです。1フロア約51坪の整形な無柱空間は、柱による視線や導線の妨げがなく、オフィスレイアウトの自由度が高い点が魅力。フリーアドレス制や複数部署の分割配置など、多様な働き方にも柔軟に対応可能です。
天井高はゆとりある3,000mmを確保しており、開放的で快適な執務空間を実現。照明や空調の設計の幅も広がります。OAフロアを採用しているため、煩雑になりがちな配線類もすっきり整理でき、ICT環境の整備にも適しています。
水回り(トイレ・給湯スペース)は室外に配置されており、執務スペースのレイアウト効率が向上。機械警備システムによるセキュリティ体制も整っており、安心して業務に集中できる環境が整っています。敷地内には駐車場も完備されており、車利用の多い企業様にもおすすめです。メットライフ三番町ビルは市ヶ谷駅(A3番出口)の他に半蔵門駅(5番出口)徒歩7分、麹町駅(6番出口)徒歩9分で利用も可能です。

