2階は現在募集がありません
1フロア募集区画あり

四番町THビル 2階

前の写真 次の写真

物件概要

物件番号

391-00035-4

物件名

四番町THビル

所在地

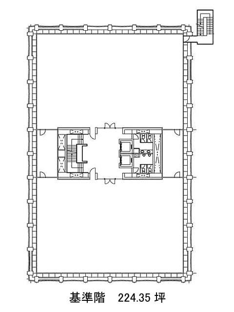
面積

224.35坪

賃料(共益費含)


入居日

募集終了

保証金

礼金

更新料

償却費

竣工

1972年3月

構造

SRC

規模

地上8階/地下1階

トイレ

男女別

空調

個別空調

エレベーター

セキュリティ

駐車場

耐震

耐震補強済み

基準階天井高

2400-4500mm

空室延床面積

84.76坪

最寄駅

情報更新日

2025/11/10

四番町THビルのテナント募集中区画

階数 面積 賃料(共益費含む) 保証金 入居可能日 検討リスト 詳細
7-8F北 84.76坪 1,771,484円/月(20,900円/坪) 1,627万円 2026年1月上旬
…新着物件

アクセス

四番町THビルの物件情報

四番町THビル(千代田区四番町)は麹町駅(6番出口)から徒歩6分の賃貸オフィスです。
番長学園通りに面したビルです。外観は白とベージュの外壁と大きな窓が特徴的な建物です。1972年竣工ですが、2020年1月にリニューアル工事を行っています。室外にはトイレが男女別であるので快適です。室内は長方形で個別空調、OAフロアなのでレイアウトはしやすいでしょう。また、機械警備も備え耐震補強済みのため、安心・安全です。周辺は大学のキャンパスや大使館などが並ぶ閑静なエリアです。郵便局やコンビニが近くにあり、駅の周辺には飲食店がありますのでランチには便利な環境です。
四番町THビルは麹町駅(6番出口)の他に市ヶ谷駅(3番出口)徒歩7分、半蔵門駅(5番出口)徒歩9分で利用も可能です。

近隣のエリア・駅から探す