四番町THビルのテナント募集中区画
| 階数 | 面積 | 賃料(共益費含む) | 保証金 | 入居可能日 | 検討リスト | 詳細 |
|---|---|---|---|---|---|---|
| 7-8F北 | 84.76坪 | 1,771,484円/月(20,900円/坪) | 1,627万円 | 2026年1月上旬 |
…新着物件
アクセス
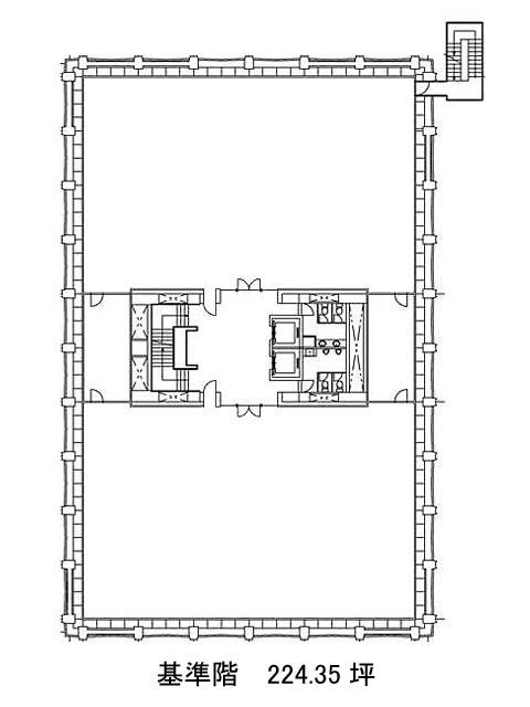
四番町THビルの物件情報
四番町THビル(千代田区四番町)は麹町駅(6番出口)から徒歩6分の賃貸オフィスです。番長学園通りに面したビルです。外観は白とベージュの外壁と大きな窓が特徴的な建物です。1972年竣工ですが、2020年1月にリニューアル工事を行っています。室外にはトイレが男女別であるので快適です。室内は長方形で個別空調、OAフロアなのでレイアウトはしやすいでしょう。また、機械警備も備え耐震補強済みのため、安心・安全です。周辺は大学のキャンパスや大使館などが並ぶ閑静なエリアです。郵便局やコンビニが近くにあり、駅の周辺には飲食店がありますのでランチには便利な環境です。四番町THビルは麹町駅(6番出口)の他に市ヶ谷駅(3番出口)徒歩7分、半蔵門駅(5番出口)徒歩9分で利用も可能です。

