第2亀谷ビル 2階
物件概要
物件番号
394-00102-20物件名
第2亀谷ビル所在地
- 東京都千代田区神田錦町2-5-4
- アクセスマップ
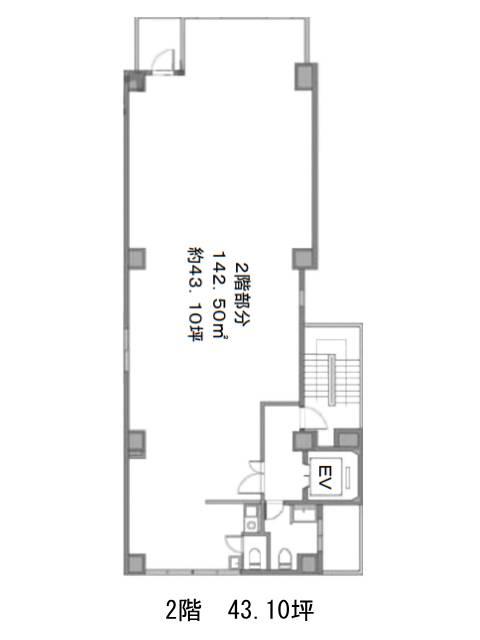
面積
43.11坪賃料(共益費含)
月額663,740円(15,397円/坪)
入居日
即保証金
3,103,403円礼金
なし更新料
新1ケ月償却費
2ケ月竣工
1987年2月構造
RC規模
地上6階トイレ
男女別空調
個別空調エレベーター
有セキュリティ
有駐車場
無耐震
新耐震基準基準階天井高
2450mm空室延床面積
43.11坪情報更新日
2025/10/29第2亀谷ビルのテナント募集中区画
| 階数 | 面積 | 賃料(共益費含む) | 保証金 | 入居可能日 | 検討リスト | 詳細 |
|---|---|---|---|---|---|---|
| 2 | 43.11坪 | 663,740円/月(15,397円/坪) | 310万円 | 即 |
…新着物件
第2亀谷ビルのアクセス
第2亀谷ビルの物件情報
第2亀谷ビル(千代田区神田錦町)は竹橋駅(3b番出口)から徒歩5分の賃貸オフィスです。神田錦町エリアに立地するこちらの物件は、グレー系タイルで整えられたシンプルな外観が目印。
基準階は約40坪の長方形で、執務スペースの効率的なレイアウトに適しています。
周辺にはコンビニやカフェが複数あり、ちょっとした休憩や打ち合わせにも便利。オフィスワーカーの“日常使いしやすさ”が感じられる立地です。
こぢんまりとしつつも、落ち着いた環境でしっかり働ける一棟。初めての事務所開設や、少人数チームでのご利用にもフィットしそうです。第2亀谷ビルは竹橋駅(3b番出口)の他に新御茶ノ水駅(B7番出口)徒歩6分、小川町駅(B7番出口)徒歩6分で利用も可能です。

