2階は現在募集がありません
1フロア募集区画あり

藤和神田錦町ビル 2階

前の写真 次の写真

物件概要

物件番号

394-00016-30

物件名

藤和神田錦町ビル

所在地

面積

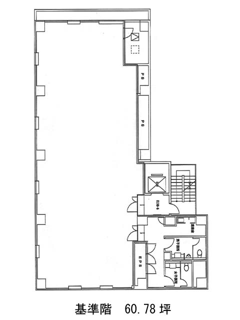
60.78坪

賃料(共益費含)


入居日

募集終了

保証金

礼金

更新料

償却費

竣工

1992年8月

構造

S造

規模

地上6階/地下1階

トイレ

男女別

空調

個別空調

エレベーター

セキュリティ

駐車場

耐震

新耐震基準

基準階天井高

2500mm

空室延床面積

60.77坪

最寄駅

情報更新日

2025/11/10

藤和神田錦町ビルのテナント募集中区画

階数 面積 賃料(共益費含む) 保証金 入居可能日 検討リスト 詳細
5 60.77坪 1,136,399円/月(18,700円/坪) 1,239万円 2025年12月下旬
…新着物件

アクセス

藤和神田錦町ビルの物件情報

藤和神田錦町ビル(千代田区神田錦町)は小川町駅(B7番出口)から徒歩5分の賃貸オフィスです。
1992年竣工、地上6階地下1階建てS造のビルです。1階にコンビニエンスストアが入り、目印としてわかりやすいでしょう。白い外壁ですっきりとした外観をしています。エントランスはグレーの石張りで高級感のあるデザインです。貸室は無柱空間の長方形で、オフィス家具やデスクのレイアウトがしやすいでしょう。設備仕様として、EV1基・個別空調・OAフロア・男女別トイレ・給湯スペースがあります。神田警察通りから1本入った道沿いに建ちます。
藤和神田錦町ビルは小川町駅(B7番出口)の他に新御茶ノ水駅(B7番出口)徒歩5分、神保町駅(A9番出口)徒歩6分で利用も可能です。

近隣のエリア・駅から探す