藤和神田錦町ビル 5階
物件概要
物件番号
394-00016-60物件名
藤和神田錦町ビル所在地
- 東京都千代田区神田錦町3-4-2
- アクセスマップ
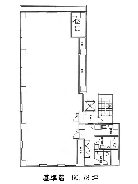
面積
60.77坪賃料(共益費含)
月額1,136,399円(18,700円/坪)
入居日
2025年12月下旬保証金
12,397,080円礼金
なし更新料
なし償却費
なし竣工
1992年8月構造
S造規模
地上6階/地下1階トイレ
男女別空調
個別空調エレベーター
有セキュリティ
駐車場
無耐震
新耐震基準基準階天井高
2500mm空室延床面積
60.77坪情報更新日
2025/11/10藤和神田錦町ビルのテナント募集中区画
| 階数 | 面積 | 賃料(共益費含む) | 保証金 | 入居可能日 | 検討リスト | 詳細 |
|---|---|---|---|---|---|---|
| 5 | 60.77坪 | 1,136,399円/月(18,700円/坪) | 1,239万円 | 2025年12月下旬 |
…新着物件
アクセス
藤和神田錦町ビルの物件情報
藤和神田錦町ビル(千代田区神田錦町)は小川町駅(B7番出口)から徒歩5分の賃貸オフィスです。1992年竣工、地上6階地下1階建てS造のビルです。1階にコンビニエンスストアが入り、目印としてわかりやすいでしょう。白い外壁ですっきりとした外観をしています。エントランスはグレーの石張りで高級感のあるデザインです。貸室は無柱空間の長方形で、オフィス家具やデスクのレイアウトがしやすいでしょう。設備仕様として、EV1基・個別空調・OAフロア・男女別トイレ・給湯スペースがあります。神田警察通りから1本入った道沿いに建ちます。藤和神田錦町ビルは小川町駅(B7番出口)の他に新御茶ノ水駅(B7番出口)徒歩5分、神保町駅(A9番出口)徒歩6分で利用も可能です。

