斉藤ビル 3階
物件概要
物件番号
394-00196-31物件名
斉藤ビル所在地
- 東京都千代田区神田錦町2-9-1
- アクセスマップ
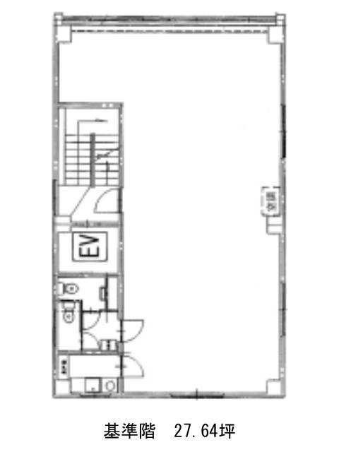
面積
27.64坪賃料(共益費含)
月額253,023円(9,154円/坪)
入居日
即保証金
1,380,120円礼金
なし更新料
新1ケ月償却費
1ケ月竣工
1965年9月構造
RC規模
地上7階トイレ
男女別空調
個別空調エレベーター
有セキュリティ
駐車場
無耐震
旧耐震基準基準階天井高
空室延床面積
27.64坪情報更新日
2025/11/14斉藤ビルのテナント募集中区画
| 階数 | 面積 | 賃料(共益費含む) | 保証金 | 入居可能日 | 検討リスト | 詳細 |
|---|---|---|---|---|---|---|
| 3 | 27.64坪 | 253,023円/月(9,154円/坪) | 138万円 | 即 |
…新着物件
アクセス
斉藤ビルの物件情報
斉藤ビル(千代田区神田錦町)は竹橋駅(3b番出口)から徒歩5分の賃貸オフィスです。外観はレンガ調をベースに白の縁取りが施されたトラディショナルなデザイン。基準階は27.64坪。お手洗いは室内に2つ設置済みですので、男女別で使用が可能です。執務室は無柱空間で使い勝手が良いでしょう。
斉藤ビルは竹橋駅の他に、複数路線が乗り入れている大手町駅へも徒歩6分のため、交通の利便性に優れています。ビルの東側徒歩2分程度の距離に郵便局が立地しているほか、更に東側の本郷通りを越えると飲食店が多数軒を連ねています。斉藤ビルは竹橋駅(3b番出口)の他に新御茶ノ水駅(B7番出口)徒歩7分、小川町駅(B7番出口)徒歩7分で利用も可能です。

