2階は現在募集がありません
安田グリーンパーク 2階
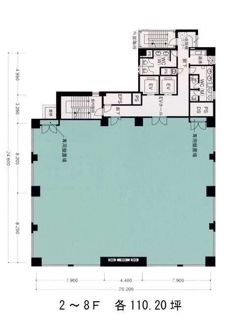
物件概要
安田グリーンパークのテナント募集中区画
現在、空室がございません。
アクセス
安田グリーンパークの物件情報
安田グリーンパーク(千代田区神田錦町)は竹橋駅(3b番出口)から徒歩6分の賃貸オフィスです。安田グリーンパークは竹橋駅(3b番出口)の他に大手町駅(C2b番出口)徒歩6分、小川町駅(B7番出口)徒歩6分で利用も可能です。

