3階 3Bは現在募集がありません
3フロア募集区画あり

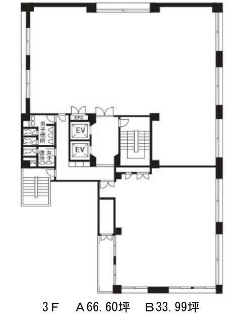
村田ビルディング 3階 3B

前の写真 次の写真

物件概要

物件番号

399-00012-30

物件名

村田ビルディング

所在地

面積

33.99坪

賃料(共益費含)


入居日

募集終了

保証金

礼金

更新料

償却費

竣工

1986年7月

構造

SRC

規模

地上10階/地下2階

トイレ

男女別

空調

個別空調

エレベーター

セキュリティ

駐車場

耐震

新耐震基準

基準階天井高

2355mm

空室延床面積

188.27坪

最寄駅

情報更新日

2025/10/28

村田ビルディングのテナント募集中区画

階数 面積 賃料(共益費含む) 保証金 入居可能日 検討リスト 詳細
3 66.60坪 1,538,460円/月(23,100円/坪) 719万円
4 66.60坪 1,538,460円/月(23,100円/坪) 719万円
6 55.07坪 1,272,117円/月(23,100円/坪) 594万円
…新着物件

アクセス

村田ビルディングの物件情報

村田ビルディング(千代田区神田駿河台)は御茶ノ水駅(御茶ノ水橋口)から徒歩3分の賃貸オフィスです。
地上10階地下1階建てSRC造、1986年竣工のビルです。新耐震基準に適合しています。ブラウンの外壁で温かみのある印象をしています。フロアはA・Bと2つの区画にわかれています。基準階面積は77.50坪(A)38.50坪(B)です。貸室は無柱空間で、オフィス家具や機器のレイアウトがしやすいでしょう。EV2基・駐車場・個別空調・OAフロア・貸室外の男女別トイレといった設備仕様をしています。
村田ビルディングは御茶ノ水駅(御茶ノ水橋口)の他に新御茶ノ水駅(B1番出口)徒歩6分、水道橋駅(東口)徒歩10分で利用も可能です。

近隣のエリア・駅から探す