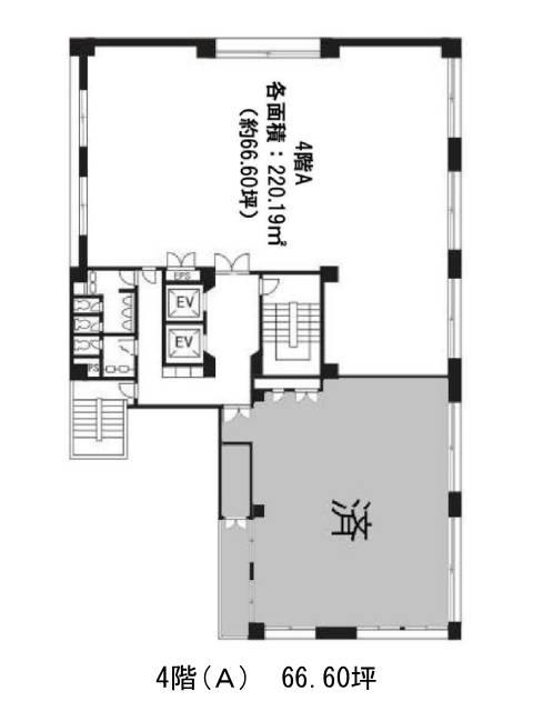
村田ビルディング 4階 A
物件概要
物件番号
399-00012-83物件名
村田ビルディング所在地
- 東京都千代田区神田駿河台2-5
- アクセスマップ
面積
66.60坪賃料(共益費含)
月額1,538,460円(23,100円/坪)
入居日
即保証金
7,192,800円礼金
なし更新料
新1ケ月償却費
1ケ月竣工
1986年7月構造
SRC規模
地上10階/地下2階トイレ
男女別空調
個別空調エレベーター
有セキュリティ
駐車場
有耐震
新耐震基準基準階天井高
2355mm空室延床面積
188.27坪情報更新日
2025/10/28村田ビルディングのテナント募集中区画
| 階数 | 面積 | 賃料(共益費含む) | 保証金 | 入居可能日 | 検討リスト | 詳細 |
|---|---|---|---|---|---|---|
| 3 | 66.60坪 | 1,538,460円/月(23,100円/坪) | 719万円 | 即 | ||
| 4 | 66.60坪 | 1,538,460円/月(23,100円/坪) | 719万円 | 即 | ||
| 6 | 55.07坪 | 1,272,117円/月(23,100円/坪) | 594万円 | 即 |
…新着物件
アクセス
村田ビルディングの物件情報
村田ビルディング(千代田区神田駿河台)は御茶ノ水駅(御茶ノ水橋口)から徒歩3分の賃貸オフィスです。地上10階地下1階建てSRC造、1986年竣工のビルです。新耐震基準に適合しています。ブラウンの外壁で温かみのある印象をしています。フロアはA・Bと2つの区画にわかれています。基準階面積は77.50坪(A)38.50坪(B)です。貸室は無柱空間で、オフィス家具や機器のレイアウトがしやすいでしょう。EV2基・駐車場・個別空調・OAフロア・貸室外の男女別トイレといった設備仕様をしています。村田ビルディングは御茶ノ水駅(御茶ノ水橋口)の他に新御茶ノ水駅(B1番出口)徒歩6分、水道橋駅(東口)徒歩10分で利用も可能です。

