サンジュ共和十番館のテナント募集中区画
| 階数 | 面積 | 賃料(共益費含む) | 保証金 | 入居可能日 | 検討リスト | 詳細 |
|---|---|---|---|---|---|---|
| 6 | 48.76坪 | 1,448,172円/月(29,700円/坪) | 789万円 | 即 |
…新着物件
アクセス
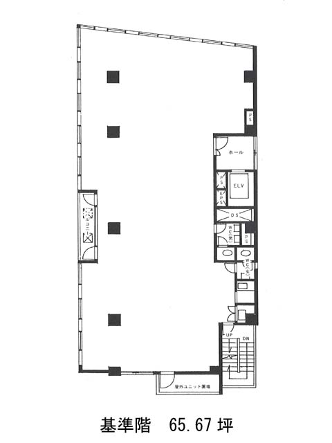
サンジュ共和十番館の物件情報
サンジュ共和十番館(千代田区神田駿河台)は新御茶ノ水駅(B3a番出口)から徒歩2分の賃貸オフィスです。1986年竣工の新耐震基準を満たした物件でございます。室内の内装は綺麗な四角形となっておりますので、レイアウトには困らないでしょう。床仕様はフリーアクセスとなっております。エレベーター1基設置。セキュリティは24時間機械警備で、勤務する方も安心してご利用いただけます。1階にはコンビニエンスストアがテナントとしてはいっており、付近には飲食店が多く、働きやすい環境が整っております。サンジュ共和十番館は新御茶ノ水駅(B3a番出口)の他に小川町駅(B3番出口)徒歩3分、淡路町駅(A7番出口)徒歩4分で利用も可能です。

