さいかち坂ビル 2階 202
物件概要
物件番号
399-00006-30物件名
さいかち坂ビル所在地
- 東京都千代田区神田駿河台2-11-16
- アクセスマップ
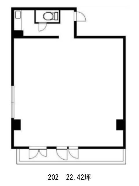
面積
22.04坪賃料(共益費含)
月額315,172円(14,300円/坪)
入居日
2026年4月上旬保証金
1,432,600円礼金
1ケ月更新料
新1ケ月償却費
2ケ月竣工
1984年5月構造
SRC規模
地上11階/地下1階トイレ
男女共用空調
個別空調エレベーター
有セキュリティ
駐車場
無耐震
新耐震基準基準階天井高
空室延床面積
22.04坪情報更新日
2026/01/19さいかち坂ビルのテナント募集中区画
| 階数 | 面積 | 賃料(共益費含む) | 保証金 | 入居可能日 | 検討リスト | 詳細 |
|---|---|---|---|---|---|---|
| 2 | 22.04坪 | 315,172円/月(14,300円/坪) | 143万円 | 2026年4月上旬 |
…新着物件
さいかち坂ビルのアクセス
さいかち坂ビルの物件情報
さいかち坂ビル(千代田区神田駿河台)は水道橋駅(東口)から徒歩5分の賃貸オフィスです。さいかち坂ビルは水道橋駅(東口)の他に御茶ノ水駅(御茶ノ水橋口)徒歩8分、神保町駅(A5番出口)徒歩10分で利用も可能です。

