7階は現在募集がありません
1フロア募集区画あり

オーク神田小川町ビル 7階

前の写真 次の写真

物件概要

物件番号

400-00161-111

物件名

オーク神田小川町ビル

所在地

面積

160.79坪

賃料(共益費含)


入居日

募集終了

保証金

礼金

更新料

償却費

竣工

1961年3月

構造

SRC

規模

地上9階/地下1階

トイレ

男女別

空調

個別空調

エレベーター

セキュリティ

駐車場

耐震

耐震補強済み

基準階天井高

空室延床面積

50.18坪

最寄駅

情報更新日

2026/03/10

オーク神田小川町ビルのテナント募集中区画

階数 面積 賃料(共益費含む) 保証金 入居可能日 検討リスト 詳細
4 50.18坪 応相談(応相談) 応相談
…新着物件

オーク神田小川町ビルのアクセス

オーク神田小川町ビルの物件情報

オーク神田小川町ビル(千代田区神田小川町)は小川町駅(B7番出口)から徒歩2分の賃貸オフィスです。
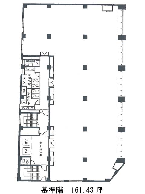
1961年竣工、地上8階建てSRC造のビルです。耐震補強工事実施済です。白と明るいブラウンを基調とした、温かみなる外観をしています。ガラス面が多く、室内に十分な採光が取り入れられるでしょう。基準階面積は161.43坪です。貸室に出入口が複数あり、来客用と動線をわけられるでしょう。設備仕様として、EV・個別空調・貸室外の男女別トイレがあります。セキュリティとして安心の機械警備が導入されています。
オーク神田小川町ビルは小川町駅(B7番出口)の他に新御茶ノ水駅(B7番出口)徒歩2分、淡路町駅(A6番出口)徒歩3分で利用も可能です。

近隣のエリア・駅から探す