小川町メセナビル 4階
物件概要
物件番号
400-00046-20物件名
小川町メセナビル所在地
- 東京都千代田区神田小川町1-7
- アクセスマップ
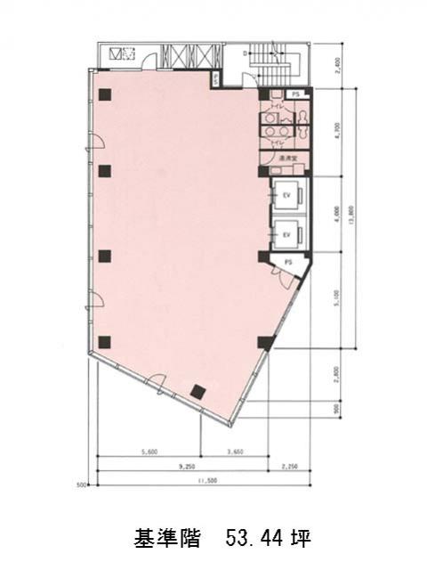
面積
53.44坪賃料(共益費含)
:応相談応相談
入居日
2026年3月上旬保証金
応相談礼金
なし更新料
なし償却費
なし竣工
1992年8月構造
S造規模
地上10階/地下1階トイレ
男女別空調
個別空調エレベーター
有セキュリティ
有駐車場
無耐震
新耐震基準基準階天井高
2500mm空室延床面積
53.44坪情報更新日
2025/11/05小川町メセナビルのテナント募集中区画
| 階数 | 面積 | 賃料(共益費含む) | 保証金 | 入居可能日 | 検討リスト | 詳細 |
|---|---|---|---|---|---|---|
| 4 | 53.44坪 | 応相談(応相談) | 応相談 | 2026年3月上旬 |
…新着物件
アクセス
小川町メセナビルの物件情報
小川町メセナビル(千代田区神田小川町)は新御茶ノ水駅(B6番出口)から徒歩1分の賃貸オフィスです。小川町駅と新御茶ノ水駅B6(共通)出入り口目の前の好立地。本郷通りに面した角地のため解放感があります。美しいガラス張りの外観が目を惹く当ビルの1階では美術ギャラリーが入居中で、その部分の外壁は御影石が用いられており上品な印象を受けます。基準階は53.44坪で2基設置済みのエレベーターから室内へはダイレクトイン仕様。男女別トイレと湯沸室はそれぞれ個室で室内に設置されています。
小川町メセナビルの周辺は飲食店、コンビニが充実しているほか、郵便局や書店も近くに立地しているため利便性にも優れいています。小川町メセナビルは新御茶ノ水駅(B6番出口)の他に小川町駅(B6番出口)徒歩1分、淡路町駅(A6番出口)徒歩1分で利用も可能です。

