5階は現在募集がありません
小川町メセナビル 5階
物件概要
小川町メセナビルのテナント募集中区画
現在、空室がございません。
アクセス
小川町メセナビルの物件情報
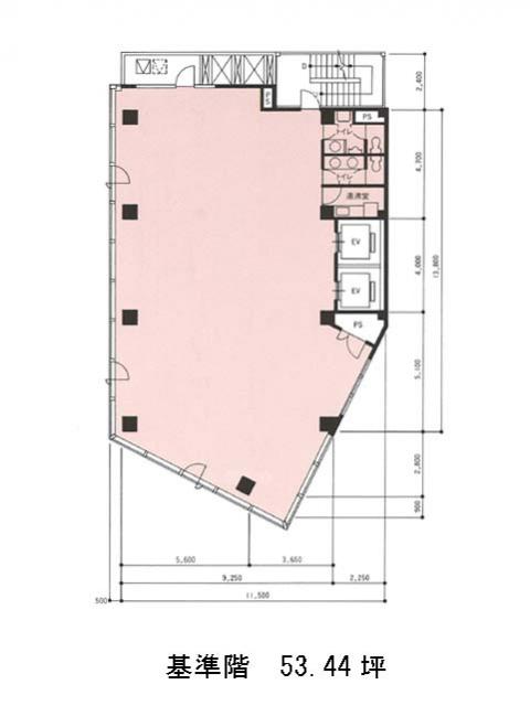
小川町メセナビル(千代田区神田小川町)は新御茶ノ水駅(B6番出口)から徒歩1分の賃貸オフィスです。小川町駅と新御茶ノ水駅B6(共通)出入り口目の前の好立地。本郷通りに面した角地のため解放感があります。美しいガラス張りの外観が目を惹く当ビルの1階では美術ギャラリーが入居中で、その部分の外壁は御影石が用いられており上品な印象を受けます。基準階は53.44坪で2基設置済みのエレベーターから室内へはダイレクトイン仕様。男女別トイレと湯沸室はそれぞれ個室で室内に設置されています。
小川町メセナビルの周辺は飲食店、コンビニが充実しているほか、郵便局や書店も近くに立地しているため利便性にも優れいています。小川町メセナビルは新御茶ノ水駅(B6番出口)の他に小川町駅(B6番出口)徒歩1分、淡路町駅(A6番出口)徒歩1分で利用も可能です。

