6階は現在募集がありません
1フロア募集区画あり

小川町メセナビル 6階

前の写真 次の写真

物件概要

物件番号

400-00046-40

物件名

小川町メセナビル

所在地

面積

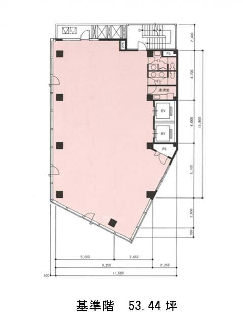
53.44坪

賃料(共益費含)


入居日

募集終了

保証金

礼金

更新料

償却費

竣工

1992年8月

構造

S造

規模

地上10階/地下1階

トイレ

男女別

空調

個別空調

エレベーター

セキュリティ

駐車場

耐震

新耐震基準

基準階天井高

2500mm

空室延床面積

41.07坪

最寄駅

情報更新日

2026/03/16

小川町メセナビルのテナント募集中区画

階数 面積 賃料(共益費含む) 保証金 入居可能日 検討リスト 詳細
10 41.07坪 応相談(応相談) 応相談 2026年9月上旬
…新着物件

小川町メセナビルのアクセス

小川町メセナビルの物件情報

小川町メセナビル(千代田区神田小川町)は新御茶ノ水駅(B6番出口)から徒歩1分の賃貸オフィスです。
小川町駅と新御茶ノ水駅B6(共通)出入り口目の前の好立地。本郷通りに面した角地のため解放感があります。美しいガラス張りの外観が目を惹く当ビルの1階では美術ギャラリーが入居中で、その部分の外壁は御影石が用いられており上品な印象を受けます。基準階は53.44坪で2基設置済みのエレベーターから室内へはダイレクトイン仕様。男女別トイレと湯沸室はそれぞれ個室で室内に設置されています。
小川町メセナビルの周辺は飲食店、コンビニが充実しているほか、郵便局や書店も近くに立地しているため利便性にも優れいています。
小川町メセナビルは新御茶ノ水駅(B6番出口)の他に小川町駅(B6番出口)徒歩1分、淡路町駅(A6番出口)徒歩1分で利用も可能です。

近隣のエリア・駅から探す