サニービルのテナント募集中区画
| 階数 | 面積 | 賃料(共益費含む) | 保証金 | 入居可能日 | 検討リスト | 詳細 |
|---|---|---|---|---|---|---|
| 1-2 | 28.64坪 | 600,000円/月(20,950円/坪) | 545万円 | 即 |
…新着物件
アクセス
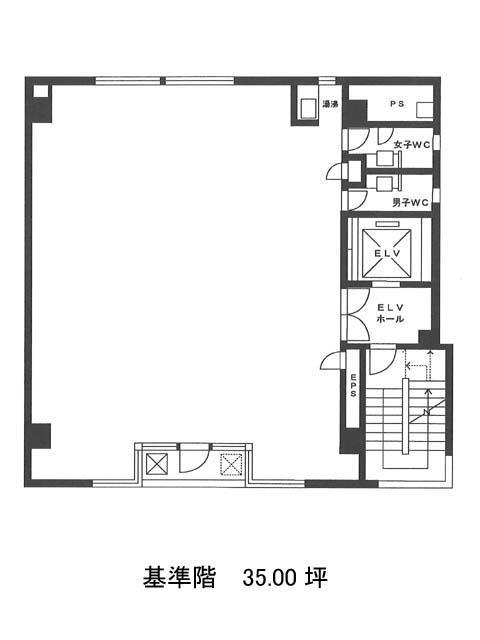
サニービルの物件情報
サニービル(千代田区神田小川町)は新御茶ノ水駅(B5番出口)から徒歩3分の賃貸オフィスです。サニービルは新御茶ノ水駅(B5番出口)の他に小川町駅(B5番出口)徒歩3分、淡路町駅(A7番出口)徒歩4分で利用も可能です。

