Y’sコーラルビル 5階新着
物件概要
物件番号
402-00016-30物件名
Y’sコーラルビル所在地
- 東京都千代田区神田神保町2-20-13
- アクセスマップ
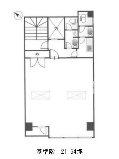
面積
21.54坪賃料(共益費含)
月額385,026円(17,875円/坪)
入居日
2026年4月上旬保証金
1,860,022円礼金
1ケ月更新料
新1ケ月償却費
なし竣工
1989年1月構造
SRC規模
地上7階トイレ
男女別空調
個別空調エレベーター
有セキュリティ
有駐車場
無耐震
新耐震基準基準階天井高
空室延床面積
43.08坪情報更新日
2026/03/05Y’sコーラルビルのテナント募集中区画
| 階数 | 面積 | 賃料(共益費含む) | 保証金 | 入居可能日 | 検討リスト | 詳細 |
|---|---|---|---|---|---|---|
| 4 | 21.54坪 | 385,006円/月(17,875円/坪) | 186万円 | 2026年4月上旬 | ||
| 5 | 21.54坪 | 385,026円/月(17,875円/坪) | 186万円 | 2026年4月上旬 |
…新着物件
Y’sコーラルビルのアクセス
Y’sコーラルビルの物件情報
Y’sコーラルビル(千代田区神田神保町)は神保町駅(A2番出口)から徒歩3分の賃貸オフィスです。Y’sコーラルビルは神保町駅(A2番出口)の他に九段下駅(6番出口)徒歩8分、水道橋駅(東口)徒歩9分で利用も可能です。

