8階は現在募集がありません
1フロア募集区画あり

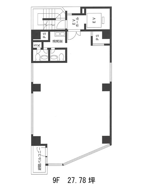
神保町1丁目ビル 8階

前の写真 次の写真

物件概要

物件番号

402-00287-80

物件名

神保町1丁目ビル

所在地

面積

27.78坪

賃料(共益費含)


入居日

募集終了

保証金

礼金

更新料

償却費

竣工

1995年8月

構造

SC造

規模

地上10階/地下1階

トイレ

男女別

空調

個別空調

エレベーター

セキュリティ

駐車場

耐震

新耐震基準

基準階天井高

空室延床面積

27.77坪

最寄駅

情報更新日

2026/02/13

神保町1丁目ビルのテナント募集中区画

階数 面積 賃料(共益費含む) 保証金 入居可能日 検討リスト 詳細
9 27.77坪 応相談(応相談) 応相談 2026年3月下旬
…新着物件

神保町1丁目ビルのアクセス

神保町1丁目ビルの物件情報

神保町1丁目ビル(千代田区神田神保町)は神保町駅(A5番出口)から徒歩1分の賃貸オフィスです。
白を基調としたパネル貼りで清潔感のある外観です。白山通りに面しており、角地で採光性も高く見通しが良いです。機械警備、フリーアクセスを備えたビルです。トイレは男女別になっています。他のテナントに気を使わなくて良い、1フロア1テナント。窓も大きくバルコニーも備えているので、外の景色を見て気分転換も可能です。神保町は交通のアクセスがよく、都内有数のオフィス街なので人も集まりやすく、オフィスを構える場所としてお勧めです。
神保町1丁目ビルは神保町駅(A5番出口)の他に九段下駅(6番出口)徒歩9分、水道橋駅(東口)徒歩9分で利用も可能です。

近隣のエリア・駅から探す