神保町1丁目ビル 9階
物件概要
物件番号
402-00287-90物件名
神保町1丁目ビル所在地
- 東京都千代田区神田神保町1-12-2
- アクセスマップ
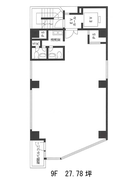
面積
27.77坪賃料(共益費含)
:応相談応相談
入居日
2026年3月下旬保証金
応相談礼金
1ケ月更新料
新1ケ月償却費
なし竣工
1995年8月構造
SC造規模
地上10階/地下1階トイレ
男女別空調
個別空調エレベーター
有セキュリティ
有駐車場
無耐震
新耐震基準基準階天井高
空室延床面積
27.77坪情報更新日
2026/02/13神保町1丁目ビルのテナント募集中区画
| 階数 | 面積 | 賃料(共益費含む) | 保証金 | 入居可能日 | 検討リスト | 詳細 |
|---|---|---|---|---|---|---|
| 9 | 27.77坪 | 応相談(応相談) | 応相談 | 2026年3月下旬 |
…新着物件
神保町1丁目ビルのアクセス
神保町1丁目ビルの物件情報
神保町1丁目ビル(千代田区神田神保町)は神保町駅(A5番出口)から徒歩1分の賃貸オフィスです。白を基調としたパネル貼りで清潔感のある外観です。白山通りに面しており、角地で採光性も高く見通しが良いです。機械警備、フリーアクセスを備えたビルです。トイレは男女別になっています。他のテナントに気を使わなくて良い、1フロア1テナント。窓も大きくバルコニーも備えているので、外の景色を見て気分転換も可能です。神保町は交通のアクセスがよく、都内有数のオフィス街なので人も集まりやすく、オフィスを構える場所としてお勧めです。神保町1丁目ビルは神保町駅(A5番出口)の他に九段下駅(6番出口)徒歩9分、水道橋駅(東口)徒歩9分で利用も可能です。

