9階は現在募集がありません
2フロア募集区画あり

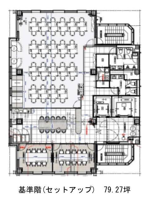
mirio神保町 9階

前の写真 次の写真

物件概要

物件番号

402-00426-8

物件名

mirio神保町

所在地

面積

79.27坪

賃料(共益費含)


入居日

募集終了

保証金

礼金

更新料

償却費

竣工

2023年8月

構造

S造

規模

地上14階

トイレ

男女別

空調

個別空調

エレベーター

セキュリティ

駐車場

耐震

新耐震基準

基準階天井高

空室延床面積

158.54坪

最寄駅

情報更新日

2025/11/17

mirio神保町のテナント募集中区画

階数 面積 賃料(共益費含む) 保証金 入居可能日 検討リスト 詳細
2 79.27坪 応相談(応相談) 応相談
12 79.27坪 応相談(応相談) 応相談
…新着物件

アクセス

mirio神保町の物件情報

mirio神保町(千代田区神田神保町)は神保町駅(A5番出口)から徒歩3分の賃貸オフィスです。
2023年竣工、地上14階建て。スタイリッシュな外観と木調を基調とした温かみのあるデザインが印象的で、訪れる人に好印象を与える佇まいです。エントランスホールは開放感があり、自然光が差し込む設計に加え、上質なマテリアルと間接照明が空間全体を柔らかく演出。壁面にはさりげなくアートが施されており、オフィスビルでありながら洗練された空間美を感じられるのも大きな魅力です。
基準階は約79坪の整形無柱空間。レイアウトの自由度が高く、一部フロアには会議室やラウンジスペース、テレカンブースなどを備えたセットアップ区画も用意されています。入居初日から業務を開始できる仕様で、内装コストを抑えたい企業にもおすすめです。
また、OAフロア、個別空調、男女別トイレ、給湯室など、日々の快適な執務環境を支える設備が標準装備。EVは11人乗りと17人乗りの2基を設置し、不停止機能付きでセキュリティ面にも配慮されています。
周辺にはカフェ・飲食店・コンビニが点在しており、オンとオフの切り替えがしやすい環境。視認性と居心地のバランスを両立させた、次世代型の都市型オフィスといえるでしょう。
mirio神保町は神保町駅(A5番出口)の他に御茶ノ水駅(御茶ノ水橋口)徒歩9分、新御茶ノ水駅(B3a番出口)徒歩9分で利用も可能です。

近隣のエリア・駅から探す