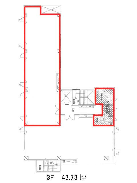
3階は現在募集がありません
神田TNKビル 3階
物件概要
神田TNKビルのテナント募集中区画
現在、空室がございません。
アクセス
神田TNKビルの物件情報
神田TNKビル(千代田区神田神保町)は神保町駅(A5番出口)から徒歩4分の賃貸オフィスです。グレーを基調としたシンプルな外観のオフィスビルです。フリーアクセス、機械警備のセキュリティ、男女別トイレを備えています。エレベーターは2基設置されています。専有部はL字型になっており、長方形オフィスよりも個性を生かしたデザイン性のあるスペースを作ることが可能です。飲食店が豊富な周辺環境や、複数路線が利用できる交通アクセスの良さもポイントです。充実した設備で、快適なビジネスライフを応援します。神田TNKビルは神保町駅(A5番出口)の他に水道橋駅(東口)徒歩8分、御茶ノ水駅(御茶ノ水橋口)徒歩10分で利用も可能です。

