東酒類ビル 5階 502
物件概要
物件番号
407-00037-20物件名
東酒類ビル所在地
- 東京都千代田区神田淡路町2-9-11
- アクセスマップ
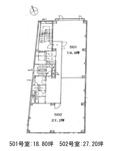
面積
27.20坪賃料(共益費含)
月額407,000円(14,964円/坪)
入居日
即保証金
2,100,058円礼金
1ケ月更新料
新1ケ月償却費
なし竣工
1978年3月構造
RC規模
地上7階トイレ
男女別空調
個別空調エレベーター
有セキュリティ
駐車場
無耐震
旧耐震基準基準階天井高
空室延床面積
27.20坪情報更新日
2025/10/02東酒類ビルのテナント募集中区画
| 階数 | 面積 | 賃料(共益費含む) | 保証金 | 入居可能日 | 検討リスト | 詳細 |
|---|---|---|---|---|---|---|
| 5 | 27.20坪 | 407,000円/月(14,964円/坪) | 210万円 | 即 |
…新着物件
アクセス
東酒類ビルの物件情報
東酒類ビル(千代田区神田淡路町)は新御茶ノ水駅(B2番出口)から徒歩4分の賃貸オフィスです。1978年竣工、地上7階建てRC造のビルです。茶色の外壁と大きなガラス窓ですっきりとした外観デザインをしています。2012年(外壁・防水工事)2022年(EV修繕)にリニューアルが実施されており、築年数を感じさせない清潔感が漂います。設備仕様としては、EV1基・個別空調・貸室内の男女別トイレがございます。旧中山道沿い建ち、近隣は中層階のビルが建ち並びます。前面が線路の為、高層階はひらけた眺望になるでしょう。東酒類ビルは新御茶ノ水駅(B2番出口)の他に御茶ノ水駅(聖橋口)徒歩4分、小川町駅(A5番出口)徒歩6分で利用も可能です。

