星野神田西口ビルのテナント募集中区画
| 階数 | 面積 | 賃料(共益費含む) | 保証金 | 入居可能日 | 検討リスト | 詳細 |
|---|---|---|---|---|---|---|
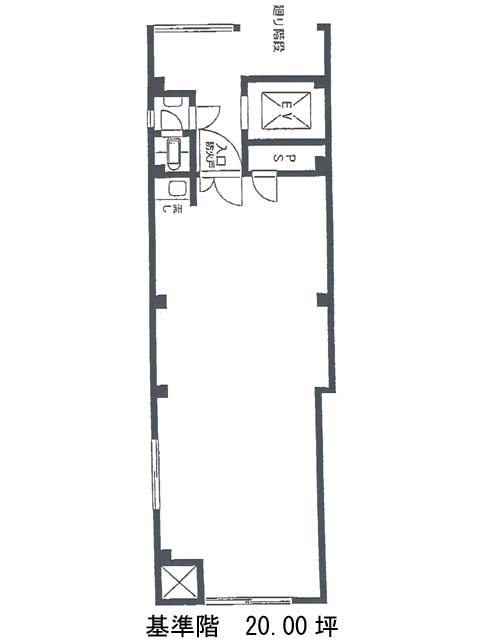
| 5 | 20.00坪 | 308,000円/月(15,400円/坪) | 144万円 | 即 |
…新着物件
アクセス
星野神田西口ビルの物件情報
星野神田西口ビル(千代田区内神田)は神田駅(南口)から徒歩2分の賃貸オフィスです。星野神田西口ビルは神田駅(南口)の他に新日本橋駅(2番出口)徒歩6分、大手町駅(A2番出口)徒歩8分で利用も可能です。

