4階は現在募集がありません
1フロア募集区画あり

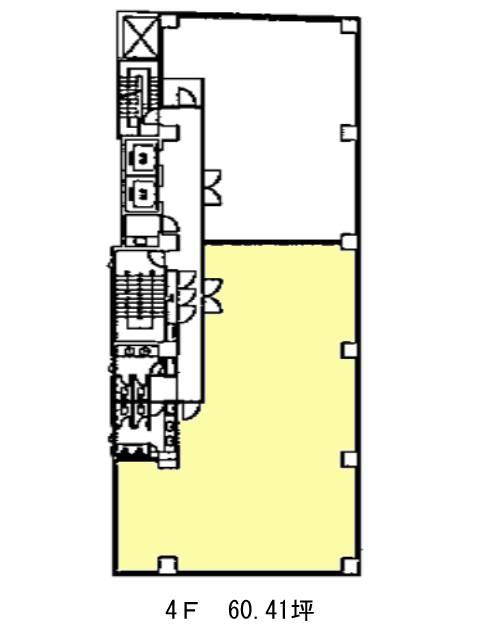
番町フィフスビル 4階

前の写真 次の写真

物件概要

物件番号

424-00013-30

物件名

番町フィフスビル

所在地

面積

60.41坪

賃料(共益費含)


入居日

募集終了

保証金

礼金

更新料

償却費

竣工

1995年8月

構造

規模

地上8階/地下1階

トイレ

男女別

空調

個別空調

エレベーター

セキュリティ

駐車場

耐震

新耐震基準

基準階天井高

2575mm

空室延床面積

45.36坪

最寄駅

情報更新日

2026/04/30

番町フィフスビルのテナント募集中区画

階数 面積 賃料(共益費含む) 保証金 入居可能日 検討リスト 詳細
7 45.36坪 応相談(応相談) 応相談 2026年11月
…新着物件

番町フィフスビルのアクセス

番町フィフスビルの物件情報

番町フィフスビル(千代田区二番町)は麹町駅(5番出口)から徒歩1分の賃貸オフィスです。
1995年竣工で地上8階建てのビルです。新耐震基準に適合しているため、安心してご入居いただけます。外観はグレーを基調とした落ち着いた雰囲気で、エントランスホールにはエレベーターは2基設置。貸室内には支柱が無いため、デスク等の配置をフレキシブルにレイアウトすることができます。またフリーアクセス床となっているので、配線もしやすいでしょう。駐車場のご利用も可能ですので、お問い合わせください。徒歩圏内にはコンビニエンスストアや飲食店が営業されているので利便性が高いです。
番町フィフスビルは麹町駅(5番出口)の他に半蔵門駅(出口1)徒歩8分、市ヶ谷駅(3番出口)徒歩8分で利用も可能です。

近隣のエリア・駅から探す