2階は現在募集がありません
番町フィフスビル 2階
物件概要
番町フィフスビルのテナント募集中区画
現在、空室がございません。
アクセス
番町フィフスビルの物件情報
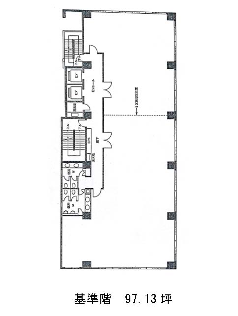
番町フィフスビル(千代田区二番町)は麹町駅(5番出口)から徒歩1分の賃貸オフィスです。1995年竣工で地上8階建てのビルです。新耐震基準に適合しているため、安心してご入居いただけます。外観はグレーを基調とした落ち着いた雰囲気で、エントランスホールにはエレベーターは2基設置。貸室内には支柱が無いため、デスク等の配置をフレキシブルにレイアウトすることができます。またフリーアクセス床となっているので、配線もしやすいでしょう。駐車場のご利用も可能ですので、お問い合わせください。徒歩圏内にはコンビニエンスストアや飲食店が営業されているので利便性が高いです。番町フィフスビルは麹町駅(5番出口)の他に半蔵門駅(出口1)徒歩8分、市ヶ谷駅(3番出口)徒歩8分で利用も可能です。

