セブネスビルのテナント募集中区画
| 階数 | 面積 | 賃料(共益費含む) | 保証金 | 入居可能日 | 検討リスト | 詳細 |
|---|---|---|---|---|---|---|
| 1 | 44.15坪 | 971,300円/月(22,000円/坪) | 1,059万円 | 2026年4月上旬 |
…新着物件
アクセス
セブネスビルの物件情報
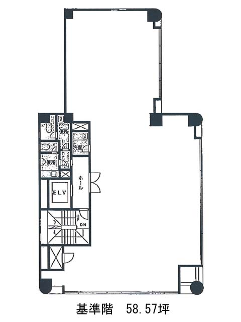
セブネスビル(千代田区二番町)は麹町駅(5番出口)から徒歩4分の賃貸オフィスです。1991年竣工、地上5階地下1階建のRC造のビルです。こげ茶色の外壁で、重厚感のある外観デザインをしています。基準階面積は58.57坪。1フロア1テナントとなります。室内に支柱が張り出していない為、デスク等のオフィス家具が配置しやすいでしょう。設備仕様として、EV1基・駐車場・機械警備・OAフロア・貸室外の男女別トイレがそろいます。空調は個別空調が導入されています。番町文人通りと番町中央通りの中ほどに立地します。セブネスビルは麹町駅(5番出口)の他に四ツ谷駅(麹町口)徒歩6分、市ヶ谷駅(3番出口)徒歩8分で利用も可能です。

