4階は現在募集がありません
1フロア募集区画あり

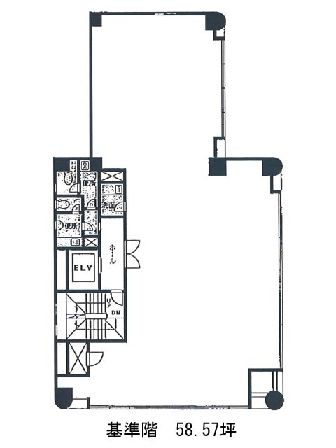
セブネスビル 4階

前の写真 次の写真

物件概要

物件番号

424-00028-40

物件名

セブネスビル

所在地

面積

58.57坪

賃料(共益費含)


入居日

募集終了

保証金

礼金

更新料

償却費

竣工

1991年4月

構造

RC

規模

地上5階/地下1階

トイレ

男女別

空調

個別空調

エレベーター

セキュリティ

駐車場

耐震

新耐震基準

基準階天井高

2400mm

空室延床面積

44.15坪

最寄駅

情報更新日

2026/03/03

セブネスビルのテナント募集中区画

階数 面積 賃料(共益費含む) 保証金 入居可能日 検討リスト 詳細
1 44.15坪 971,300円/月(22,000円/坪) 1,059万円 2026年4月上旬
…新着物件

セブネスビルのアクセス

セブネスビルの物件情報

セブネスビル(千代田区二番町)は麹町駅(5番出口)から徒歩4分の賃貸オフィスです。
1991年竣工、地上5階地下1階建のRC造のビルです。こげ茶色の外壁で、重厚感のある外観デザインをしています。基準階面積は58.57坪。1フロア1テナントとなります。室内に支柱が張り出していない為、デスク等のオフィス家具が配置しやすいでしょう。設備仕様として、EV1基・駐車場・機械警備・OAフロア・貸室外の男女別トイレがそろいます。空調は個別空調が導入されています。番町文人通りと番町中央通りの中ほどに立地します。
セブネスビルは麹町駅(5番出口)の他に四ツ谷駅(麹町口)徒歩6分、市ヶ谷駅(3番出口)徒歩8分で利用も可能です。

近隣のエリア・駅から探す