NOVEL WORK 半蔵門のテナント募集中区画
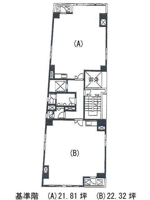
| 階数 | 面積 | 賃料(共益費含む) | 保証金 | 入居可能日 | 検討リスト | 詳細 |
|---|---|---|---|---|---|---|
| 2 | 23.81坪 | 759,539円/月(31,900円/坪) | 応相談 | 即 | ||
| 4 | 23.67坪 | 755,073円/月(31,900円/坪) | 応相談 | 即 | ||
| 4 | 24.20坪 | 771,980円/月(31,900円/坪) | 応相談 | 即 | ||
| 7 | 47.84坪 | 1,578,720円/月(33,000円/坪) | 応相談 | 即 |
…新着物件
アクセス
NOVEL WORK 半蔵門の物件情報
NOVEL WORK 半蔵門(千代田区隼町)は半蔵門駅(1番出口)から徒歩3分の賃貸オフィスです。NOVEL WORK 半蔵門は半蔵門駅(1番出口)の他に永田町駅(4番出口)徒歩7分、麹町駅(1番出口)徒歩7分で利用も可能です。

