文弘社ビルのテナント募集中区画
| 階数 | 面積 | 賃料(共益費含む) | 保証金 | 入居可能日 | 検討リスト | 詳細 |
|---|---|---|---|---|---|---|
| 3 | 47.00坪 | 620,400円/月(13,200円/坪) | 451万円 | 即 |
…新着物件
文弘社ビルのアクセス
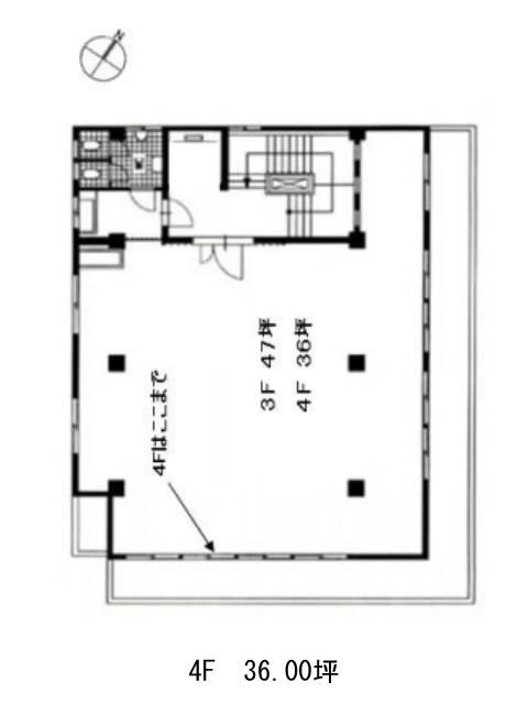
文弘社ビルの物件情報
文弘社ビル(千代田区飯田橋)は九段下駅(7番出口)から徒歩5分の賃貸オフィスです。複数路線を利用することが出来るため、アクセス良好な立地でございます。長方形のフロアでレイアウトしやすいのも嬉しいポイントです。大通り沿いに面しているため、窓から入ってくる光は多く、オフィス内を明るく保つことが可能です。男女別のトイレ設置となっていて、個別空調完備、24時間のオフィス利用が可能です。徒歩圏内に複数コンビニエンスストアがございますので、ランチなどのお買い物にも困りません。文弘社ビルは九段下駅(7番出口)の他に飯田橋駅(A5番出口)徒歩6分、水道橋駅(西口)徒歩8分で利用も可能です。

