文弘社ビル 3階
物件概要
物件番号
427-00046-21物件名
文弘社ビル所在地
- 東京都千代田区飯田橋2-14-1
- アクセスマップ
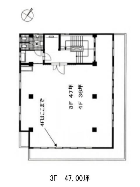
面積
47.00坪賃料(共益費含)
月額620,400円(13,200円/坪)
入居日
即保証金
4,512,000円礼金
なし更新料
新1ケ月償却費
2ケ月竣工
1964年4月構造
RC規模
地上5階トイレ
男女別空調
個別空調エレベーター
無セキュリティ
駐車場
無耐震
旧耐震基準基準階天井高
2800mm空室延床面積
47.00坪情報更新日
2026/03/04文弘社ビルのテナント募集中区画
| 階数 | 面積 | 賃料(共益費含む) | 保証金 | 入居可能日 | 検討リスト | 詳細 |
|---|---|---|---|---|---|---|
| 3 | 47.00坪 | 620,400円/月(13,200円/坪) | 451万円 | 即 |
…新着物件
文弘社ビルのアクセス
文弘社ビルの物件情報
文弘社ビル(千代田区飯田橋)は九段下駅(7番出口)から徒歩5分の賃貸オフィスです。複数路線を利用することが出来るため、アクセス良好な立地でございます。長方形のフロアでレイアウトしやすいのも嬉しいポイントです。大通り沿いに面しているため、窓から入ってくる光は多く、オフィス内を明るく保つことが可能です。男女別のトイレ設置となっていて、個別空調完備、24時間のオフィス利用が可能です。徒歩圏内に複数コンビニエンスストアがございますので、ランチなどのお買い物にも困りません。文弘社ビルは九段下駅(7番出口)の他に飯田橋駅(A5番出口)徒歩6分、水道橋駅(西口)徒歩8分で利用も可能です。

