地下1階は現在募集がありません
平河町センタービル 地下1階
物件概要
平河町センタービルのテナント募集中区画
現在、空室がございません。
アクセス
平河町センタービルの物件情報
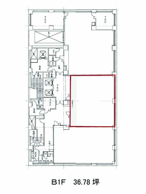
平河町センタービル(千代田区平河町)は麹町駅(出口)から徒歩3分の賃貸オフィスです。1988年竣工、地上10階地下3階建てSRC造のビルです。新耐震基準を満たしています。明るいグレーの外壁に等間隔に窓が並び、シンプルな外観をしています。基準階面積は136.89坪。フロアの一箇所に共用部が集まり、それを囲むようなコの字型に貸室が配置されています。設備仕様として、EV・駐車場・個別空調・OAフロア・貸室外の男女別トイレがあります。セキュリティは機械警備が導入されています。平河町センタービルは麹町駅(出口)の他に半蔵門駅(1番出口)徒歩4分、永田町駅(9b番出口)徒歩6分で利用も可能です。

