PMO平河町 3階
物件概要
物件番号
429-00158-2物件名
PMO平河町所在地
- 東京都千代田区平河町2-7-3
- アクセスマップ
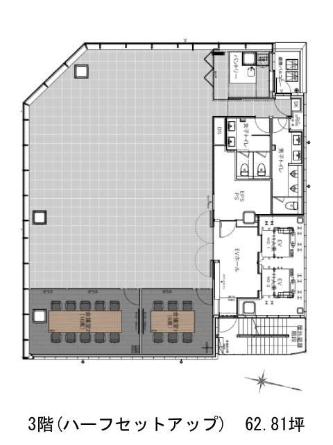
面積
62.81坪賃料(共益費含)
:応相談応相談
入居日
2026年2月上旬保証金
応相談礼金
なし更新料
なし償却費
なし竣工
2016年1月構造
S造規模
地上10階トイレ
男女別空調
個別空調エレベーター
有セキュリティ
有駐車場
有耐震
新耐震基準基準階天井高
2750mm空室延床面積
62.81坪情報更新日
2025/11/07PMO平河町のテナント募集中区画
| 階数 | 面積 | 賃料(共益費含む) | 保証金 | 入居可能日 | 検討リスト | 詳細 |
|---|---|---|---|---|---|---|
| 3 | 62.81坪 | 応相談(応相談) | 応相談 | 2026年2月上旬 |
…新着物件
アクセス
PMO平河町の物件情報
PMO平河町(千代田区平河町)は永田町駅(4番出口)から徒歩2分の賃貸オフィスです。青山通りに面していて、貝坂通りへの角地にあるビルです。2016年竣工のとても綺麗な物件です。大きな窓ガラスの質感が際立つスタイリッシュで視認性の高い外観です。室内には足元から天井まである大きな窓が非常に採光性が高く、男女別のトイレ、給湯室もあるので快適です。トイレ内のアメニティスペースも契約清掃会社が清掃を行い、消耗品も補充するシステムで細かいことに煩わされることもありません。また、5段階のセキュリティシステムを備えていて、耐震も病院や警察署などと同等クラスの新耐震基準の1.5倍の耐震強度を採用しているので安心・安全です。PMO平河町は永田町駅(4番出口)の他に赤坂見附駅(D番出口)徒歩5分、半蔵門駅(1番出口)徒歩9分で利用も可能です。

