7階は現在募集がありません
1フロア募集区画あり

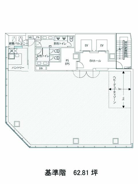
PMO平河町 7階

前の写真 次の写真

物件概要

物件番号

429-00158-6

物件名

PMO平河町

所在地

面積

62.81坪

賃料(共益費含)


入居日

募集終了

保証金

礼金

更新料

償却費

竣工

2016年1月

構造

S造

規模

地上10階

トイレ

男女別

空調

個別空調

エレベーター

セキュリティ

駐車場

耐震

新耐震基準

基準階天井高

2750mm

空室延床面積

62.81坪

最寄駅

情報更新日

2026/05/12

PMO平河町のテナント募集中区画

階数 面積 賃料(共益費含む) 保証金 入居可能日 検討リスト 詳細
8 62.81坪 応相談(応相談) 応相談 2026年12月上旬
…新着物件

PMO平河町のアクセス

PMO平河町の物件情報

PMO平河町(千代田区平河町)は永田町駅(4番出口)から徒歩2分の賃貸オフィスです。
青山通りに面していて、貝坂通りへの角地にあるビルです。2016年竣工のとても綺麗な物件です。大きな窓ガラスの質感が際立つスタイリッシュで視認性の高い外観です。室内には足元から天井まである大きな窓が非常に採光性が高く、男女別のトイレ、給湯室もあるので快適です。トイレ内のアメニティスペースも契約清掃会社が清掃を行い、消耗品も補充するシステムで細かいことに煩わされることもありません。また、5段階のセキュリティシステムを備えていて、耐震も病院や警察署などと同等クラスの新耐震基準の1.5倍の耐震強度を採用しているので安心・安全です。
PMO平河町は永田町駅(4番出口)の他に赤坂見附駅(D番出口)徒歩5分、半蔵門駅(1番出口)徒歩9分で利用も可能です。

近隣のエリア・駅から探す