6階は現在募集がありません
1フロア募集区画あり

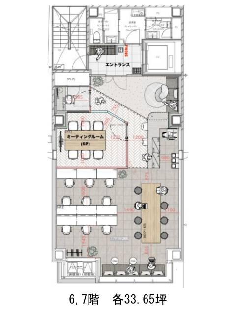
ARISTO平河町 6階

前の写真 次の写真

物件概要

物件番号

429-00176-5

物件名

ARISTO平河町

所在地

面積

33.65坪

賃料(共益費含)


入居日

募集終了

保証金

礼金

更新料

償却費

竣工

2024年5月

構造

S造

規模

地上10階

トイレ

男女別

空調

個別空調

エレベーター

セキュリティ

駐車場

耐震

新耐震基準

基準階天井高

2700mm

空室延床面積

33.65坪

最寄駅

情報更新日

2026/02/06

ARISTO平河町のテナント募集中区画

階数 面積 賃料(共益費含む) 保証金 入居可能日 検討リスト 詳細
9 33.65坪 999,405円/月(29,700円/坪) 454万円 2026年4月中旬
…新着物件

ARISTO平河町のアクセス

ARISTO平河町の物件情報

ARISTO平河町(千代田区平河町)は半蔵門駅(1番出口)から徒歩3分の賃貸オフィスです。
ARISTO平河町は半蔵門駅(1番出口)の他に麹町駅(1番出口)徒歩4分、永田町駅(9b番出口)徒歩7分で利用も可能です。

近隣のエリア・駅から探す