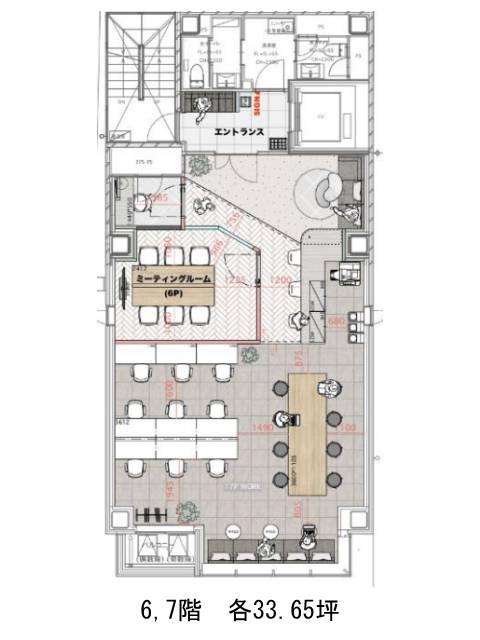
ARISTO平河町のテナント募集中区画
| 階数 | 面積 | 賃料(共益費含む) | 保証金 | 入居可能日 | 検討リスト | 詳細 |
|---|---|---|---|---|---|---|
| 9 | 33.65坪 | 999,405円/月(29,700円/坪) | 454万円 | 2026年4月中旬 |
…新着物件
ARISTO平河町のアクセス
ARISTO平河町の物件情報
ARISTO平河町(千代田区平河町)は半蔵門駅(1番出口)から徒歩3分の賃貸オフィスです。ARISTO平河町は半蔵門駅(1番出口)の他に麹町駅(1番出口)徒歩4分、永田町駅(9b番出口)徒歩7分で利用も可能です。

