全国旅館会館ビルのテナント募集中区画
| 階数 | 面積 | 賃料(共益費含む) | 保証金 | 入居可能日 | 検討リスト | 詳細 |
|---|---|---|---|---|---|---|
| 7 | 25.55坪 | 応相談(応相談) | 応相談 | 即 |
…新着物件
アクセス
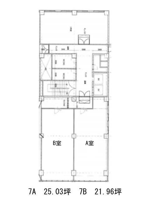
全国旅館会館ビルの物件情報
全国旅館会館ビル(千代田区平河町)は永田町駅(9b番出口)から徒歩2分の賃貸オフィスです。
建物は1970年竣工の地上7階建て。2015年に共用部がリニューアルされており、落ち着きと清潔感を兼ね備えた空間に整えられています。また、耐震補強も実施済み。
20坪~100坪程度まで細やかな分割実績もあり、規模やフェーズに応じた柔軟なオフィスプランが可能です。
設備面では、OAフロア・個別空調・機械警備・男女別トイレ(共用部)・エレベーター2基・駐車場完備。
官公庁や各種団体が多く集まる落ち着いた街並みにありながら、周囲には飲食店やカフェも点在しており、ランチや打ち合わせの場に困らない環境も働くうえでは大きな安心材料となります。
全国旅館会館ビルは永田町駅(9b番出口)の他に赤坂見附駅(D番出口)徒歩6分、麹町駅(1番出口)徒歩8分で利用も可能です。

