2階は現在募集がありません
1フロア募集区画あり

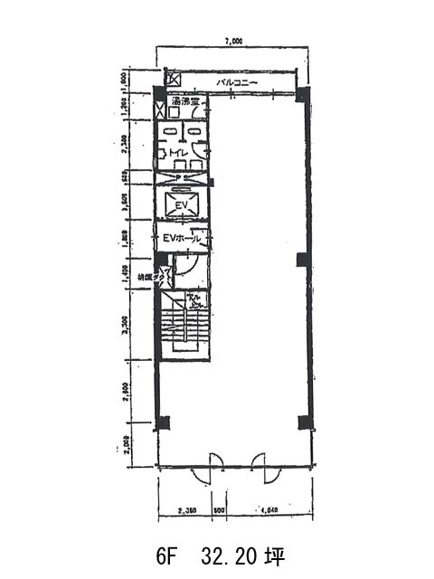
平河町伏見ビル 2階

前の写真 外観①(メイン) 次の写真

物件概要

物件番号

429-00093-20

物件名

平河町伏見ビル

所在地

面積

32.20坪

賃料(共益費含)


入居日

募集終了

保証金

礼金

更新料

償却費

竣工

1980年5月

構造

RC

規模

地上10階

トイレ

男女別

空調

個別空調

エレベーター

セキュリティ

駐車場

耐震

耐震補強済み

基準階天井高

空室延床面積

30.19坪

最寄駅

情報更新日

2025/09/01

平河町伏見ビルのテナント募集中区画

階数 面積 賃料(共益費含む) 保証金 入居可能日 検討リスト 詳細
7 30.19坪 664,248円/月(22,002円/坪) 264万円
…新着物件

アクセス

平河町伏見ビルの物件情報

平河町伏見ビル(千代田区平河町)は半蔵門駅(1番出口)から徒歩4分の賃貸オフィスです。
平河町伏見ビルは半蔵門駅(1番出口)の他に麹町駅(1番出口)徒歩4分、永田町駅(9b番出口)徒歩7分で利用も可能です。

近隣のエリア・駅から探す