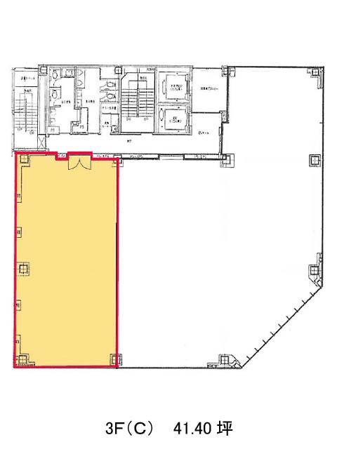
3階 3Cは現在募集がありません
秋葉原ビジネスセンター 3階 3C
物件概要
秋葉原ビジネスセンターのテナント募集中区画
現在、空室がございません。
アクセス
秋葉原ビジネスセンターの物件情報
秋葉原ビジネスセンター(台東区秋葉原)は秋葉原駅(2番出口)から徒歩5分の賃貸オフィスです。秋葉原ビジネスセンターは秋葉原駅(2番出口)の他に末広町駅(1番出口)徒歩6分、仲御徒町駅(2番出口)徒歩6分で利用も可能です。

