3階は現在募集がありません
1フロア募集区画あり

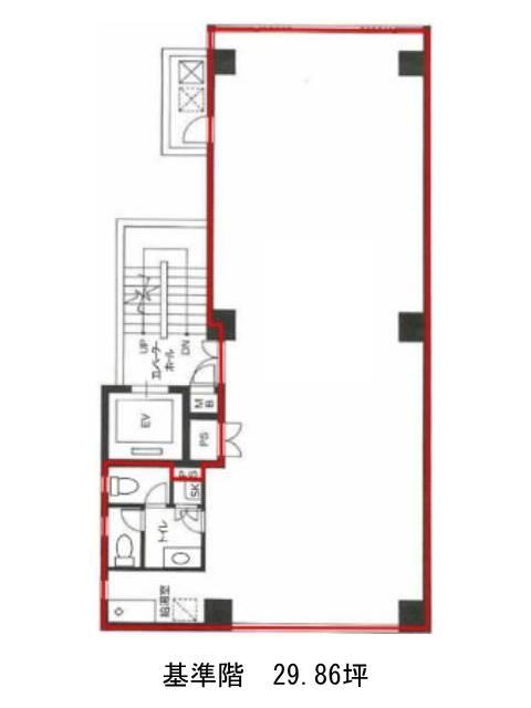
稲垣ビル 3階

前の写真 次の写真

物件概要

物件番号

559-00187-43

物件名

稲垣ビル

所在地

面積

29.68坪

賃料(共益費含)


入居日

募集終了

保証金

礼金

更新料

償却費

竣工

1988年6月

構造

SRC

規模

地上8階

トイレ

男女別

空調

個別空調

エレベーター

セキュリティ

駐車場

耐震

新耐震基準

基準階天井高

2310mm

空室延床面積

29.68坪

最寄駅

情報更新日

2026/04/06

稲垣ビルのテナント募集中区画

階数 面積 賃料(共益費含む) 保証金 入居可能日 検討リスト 詳細
2 29.68坪 応相談(応相談) 応相談
…新着物件

稲垣ビルのアクセス

稲垣ビルの物件情報

稲垣ビル(台東区浅草橋)は浅草橋駅(東口)から徒歩4分の賃貸オフィスです。
稲垣ビルは浅草橋駅(東口)の他に馬喰町駅(6番出口)徒歩8分、蔵前駅(A1番出口)徒歩10分で利用も可能です。

近隣のエリア・駅から探す