4階は現在募集がありません
1フロア募集区画あり

M’s325ビル 4階

前の写真 次の写真

物件概要

物件番号

559-00045-20

物件名

M’s325ビル

所在地

面積

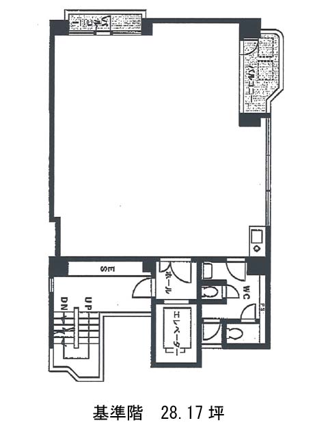
28.17坪

賃料(共益費含)


入居日

募集終了

保証金

礼金

更新料

償却費

竣工

1989年10月

構造

RC

規模

地上9階/地下1階

トイレ

不明

空調

個別空調

エレベーター

セキュリティ

駐車場

耐震

新耐震基準

基準階天井高

空室延床面積

28.17坪

最寄駅

情報更新日

2026/01/16

M’s325ビルのテナント募集中区画

階数 面積 賃料(共益費含む) 保証金 入居可能日 検討リスト 詳細
7 28.17坪 495,792円/月(17,600円/坪) 236万円 2026年2月中旬
…新着物件

アクセス

M’s325ビルの物件情報

M’s325ビル(台東区浅草橋)は蔵前駅(A1番出口)から徒歩3分の賃貸オフィスです。
M’s325ビルは蔵前駅(A1番出口)の他に浅草橋駅(A6番出口)徒歩6分、馬喰町駅(6番出口)徒歩12分で利用も可能です。

近隣のエリア・駅から探す