M’s325ビルのテナント募集中区画
| 階数 | 面積 | 賃料(共益費含む) | 保証金 | 入居可能日 | 検討リスト | 詳細 |
|---|---|---|---|---|---|---|
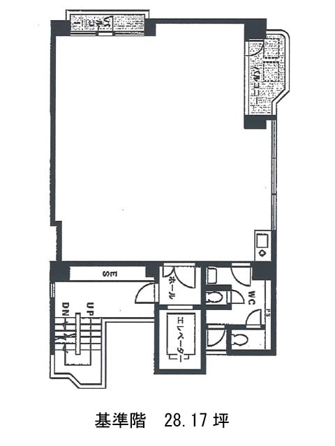
| 7 | 28.17坪 | 495,792円/月(17,600円/坪) | 236万円 | 2026年2月中旬 |
…新着物件
アクセス
M’s325ビルの物件情報
M’s325ビル(台東区浅草橋)は蔵前駅(A1番出口)から徒歩3分の賃貸オフィスです。M’s325ビルは蔵前駅(A1番出口)の他に浅草橋駅(A6番出口)徒歩6分、馬喰町駅(6番出口)徒歩12分で利用も可能です。

