8階は現在募集がありません
井門東上野ビル 8階
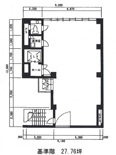
物件概要
井門東上野ビルのテナント募集中区画
現在、空室がございません。
井門東上野ビルのアクセス
井門東上野ビルの物件情報
井門東上野ビル(台東区東上野)は稲荷町駅(2番出口)から徒歩2分の賃貸オフィスです。井門東上野ビルは稲荷町駅(2番出口)の他に新御徒町駅(A3番出口)徒歩6分、上野駅(2番出口)徒歩7分で利用も可能です。

