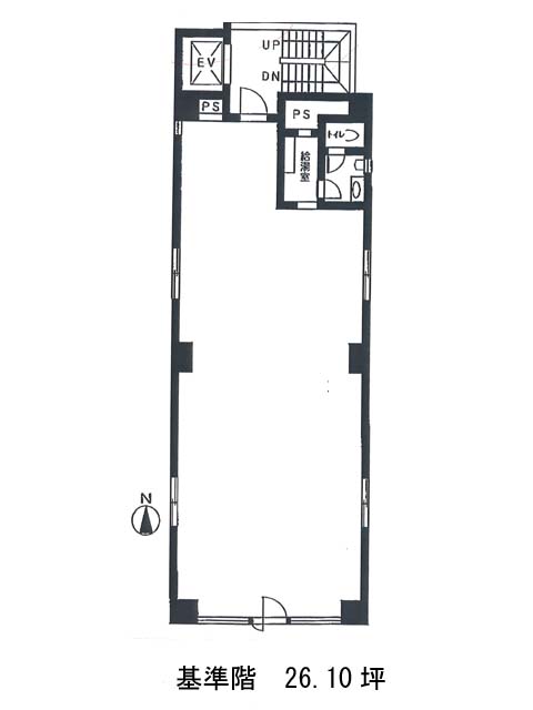
3階は現在募集がありません
第2江口ビル 3階
物件概要
第2江口ビルのテナント募集中区画
現在、空室がございません。
アクセス
第2江口ビルの物件情報
第2江口ビル(台東区東上野)は仲御徒町駅(3番出口)から徒歩3分の賃貸オフィスです。
第2江口ビルは仲御徒町駅(3番出口)の他に上野御徒町駅(A8番出口)徒歩4分、上野駅(3番出口)徒歩5分で利用も可能です。

