THE GATE UENOのテナント募集中区画
| 階数 | 面積 | 賃料(共益費含む) | 保証金 | 入居可能日 | 検討リスト | 詳細 |
|---|---|---|---|---|---|---|
| 3 | 51.63坪 | 965,481円/月(18,700円/坪) | 応相談 | 2026年2月上旬 | ||
| 4 | 51.63坪 | 1,135,860円/月(22,000円/坪) | 応相談 | 2026年2月上旬 | ||
| 9 | 51.74坪 | 1,252,108円/月(24,200円/坪) | 応相談 | 2026年2月上旬 |
…新着物件
アクセス
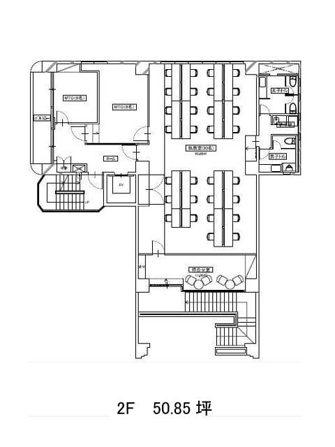
THE GATE UENOの物件情報
THE GATE UENO(台東区東上野)は仲御徒町駅(3番出口)から徒歩3分の賃貸オフィスです。1987年竣工、地上9階建ての鉄骨鉄筋コンクリート造です。春日通りに面しており、駅から大変近い利便性の高いビルです。周辺には、コンビニや飲食店、ATMなど複数あります。室内は約50坪超の広さ、L字型のため、オフィス内を区切って使用するなど、レイアウト次第で使いやすい空間となるでしょう。個別空調、OAフロア、男女別トイレ、機械警備を導入と、設備面が充実しております。エレベーターは1基ございます。THE GATE UENOは仲御徒町駅(3番出口)の他に上野御徒町駅(A8番出口)徒歩3分、新御徒町駅(A1番出口)徒歩4分で利用も可能です。

