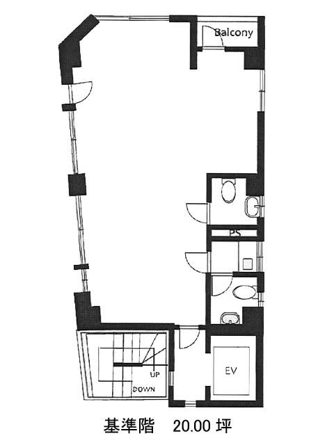
5階は現在募集がありません
しみやビル 5階
物件概要
しみやビルのテナント募集中区画
現在、空室がございません。
アクセス
しみやビルの物件情報
しみやビル(台東区東上野)は稲荷町駅(1番出口)から徒歩4分の賃貸オフィスです。しみやビルは稲荷町駅(1番出口)の他に上野駅(2番出口)徒歩4分、新御徒町駅(A1番出口)徒歩6分で利用も可能です。

