7階 701は現在募集がありません
偕楽ビル(東上野Ⅱ) 7階 701
物件概要
偕楽ビル(東上野Ⅱ)のテナント募集中区画
現在、空室がございません。
アクセス
偕楽ビル(東上野Ⅱ)の物件情報
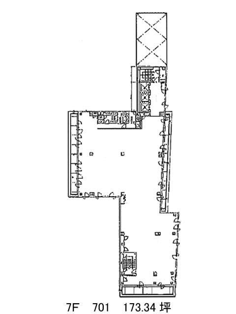
偕楽ビル(東上野Ⅱ)(台東区東上野)は新御徒町駅(A1番出口)から徒歩4分の賃貸オフィスです。1991年竣工、地上9階建ての鉄骨造です。石造りで高級感があり、デザイン性の高い外観の大型ビルです。エントランスには赤いカーペットが敷かれており、更に高級感を感じさせます。清洲橋通りと春日通りから近い立地ですので、コンビニや飲食店などランチ時は困る事はなさそうです。銀行も徒歩圏内です。室内は、基準階が約259坪と広く、L字型です。柱がありますので、室内を分割などレイアウト次第で快適な室内を演出できるでしょう。男女別トイレ、個別空調、エレベーター3基と設備面が充実しております。機械式立体駐車場もございます。偕楽ビル(東上野Ⅱ)は新御徒町駅(A1番出口)の他に稲荷町駅(1番出口)徒歩6分、上野駅(2番出口)徒歩6分で利用も可能です。

